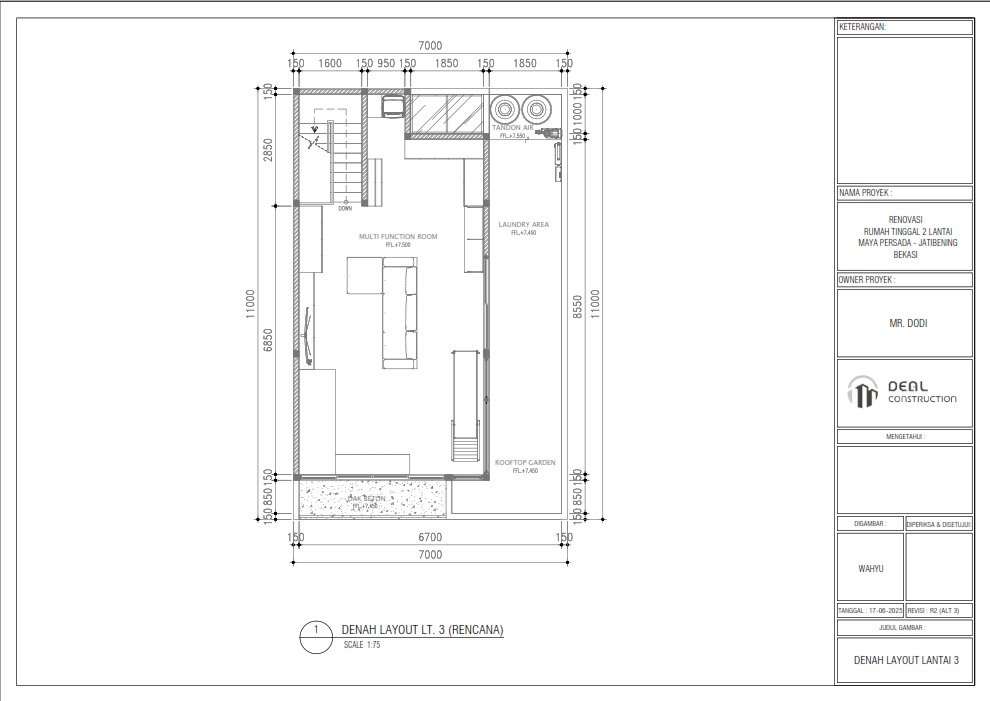
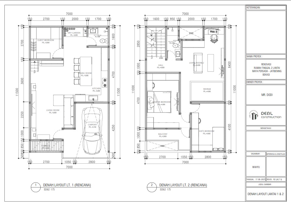
Project Mr. DD - Bekasi

Deskripsi

Mewujudkan Rumah Tropis Minimalis di Jatibening, Bekasi.

Selamat datang di portofolio proyek kami! Kami dengan bangga mempersembahkan salah satu karya terbaru kami : pembangunan rumah klien di Jatibening, Bekasi, dengan sentuhan desain Tropical Minimalis.

Sebagai kontraktor tepercaya, kami berkomitmen penuh untuk mewujudkan setiap visi klien. Proyek ini bukan hanya tentang membangun sebuah bangunan, melainkan menciptakan ruang yang harmonis, fungsional, dan memberikan kenyamanan maksimal, sejalan dengan iklim tropis Indonesia.

Mengenal Desain Tropical Minimalis

Desain ini adalah perpaduan sempurna antara kesederhanaan minimalis dengan elemen khas rumah tropis. Karakteristik utamanya meliputi:

  • Sirkulasi Udara dan Cahaya Optimal: Rancangan rumah yang memaksimalkan aliran udara alami dan masuknya cahaya matahari, membuat ruangan terasa sejuk dan cerah.

  • Penggunaan Material Alami: Pemanfaatan material seperti kayu, batu alam, dan bambu yang menciptakan kesan hangat dan menyatu dengan alam.

  • Integrasi Ruang Hijau: Menyatu dengan alam, seperti taman kecil atau courtyard untuk menciptakan suasana yang asri.

  • Garis Bersih dan Sederhana: Mengadopsi prinsip minimalis dengan menyingkirkan ornamen yang tidak perlu, sehingga fokus pada esensi ruang dan fungsinya.

Keunggulan Proyek Kami

  • Desain Personal dan Fungsional: Setiap sudut rumah dirancang khusus untuk memenuhi kebutuhan dan gaya hidup klien.

  • Kualitas Pembangunan Terbaik: Kami menggunakan material berkualitas premium dan teknik konstruksi modern untuk menjamin kekuatan dan ketahanan bangunan.

  • Pengerjaan Rapi dan Tepat Waktu: Tim profesional kami bekerja dengan cermat dan efisien, memastikan proyek selesai sesuai jadwal dengan hasil yang presisi.

Kami mengundang Anda untuk melihat bagaimana kami mewujudkan konsep desain ini menjadi sebuah hunian yang sejuk, nyaman, dan estetis. Proyek ini adalah bukti dedikasi kami dalam memberikan kualitas terbaik yang melampaui ekspektasi.

Jika Anda bermimpi memiliki rumah yang dirancang khusus dengan gaya Tropical Minimalis atau gaya lainnya, kami siap membantu. Mari wujudkan hunian impian Anda bersama kami!

Hubungi Kami

Ingin bangun rumah? konsultasikan konstruksi Anda bersama kami sekarang!

chat whatsapp
image

Copyright ©2026 PT. Desain Engineering Arsitektur Logistik. CREATED BY IDVITECH